KONSTANZ
COLEGIO
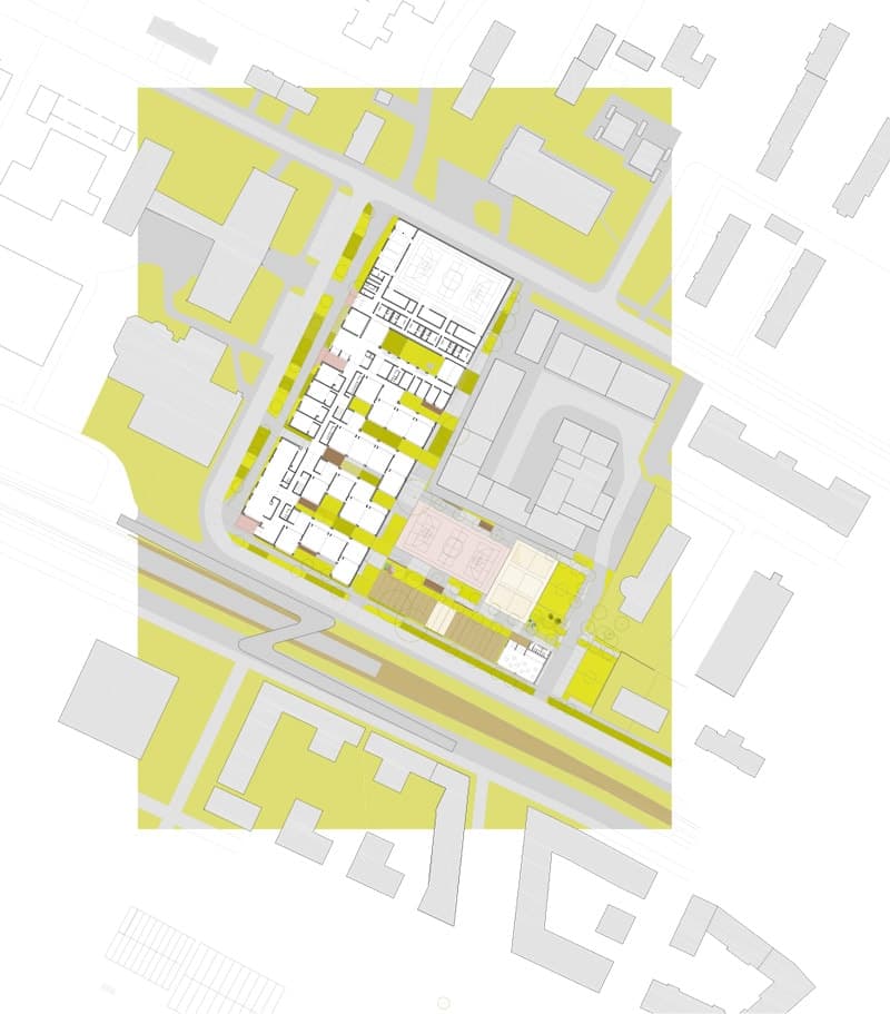
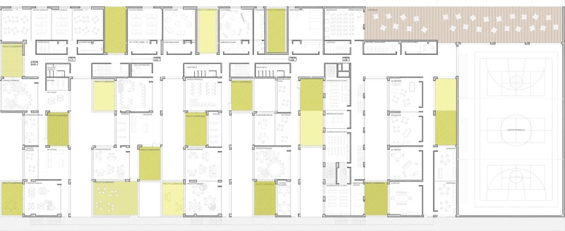
La propuesta consiste en la rehabilitación del edificio existente, así como su ampliación a partir de un patrón de patios y aulas creando un espacio inspirador, en los que las vistas constantes al exterior y la entrada de luz natural contribuyen a una mejor educación.
