CORDOBA

VIVIENDAS

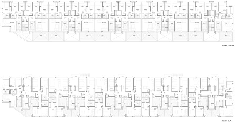
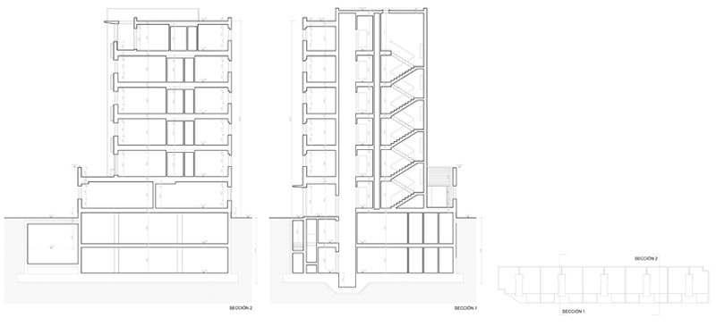
Proyecto básico y de ejecución, así como la participación en la dirección de obra de edificio plurifamiliar en Córdoba.

Localización:
Córdoba, España
Estado:
Construido
Año:
2011-2013
Sodinur